The Town Homes

The two-story town homes are located in four two-unit buildings and six three-unit buildings. Some are two bedrooms; the majority are three bedrooms. Each includes a living room, deck and master bedroom overlooking Lake Superior. All have a full kitchen, with Corian or Cambria countertops, deluxe pine cabinetry and doors, forced air heat and central air conditioning (the latter rarely needed), extensive use of ceramic tile, heated tile floors in bathrooms and Marvin and Pella windows and doors.

The buildings feature natural cedar siding stained a golden tint, brown half-round below the cedar siding and cedar wood entry decks and main decks.

The building and units vary, but below are "typical" layouts.

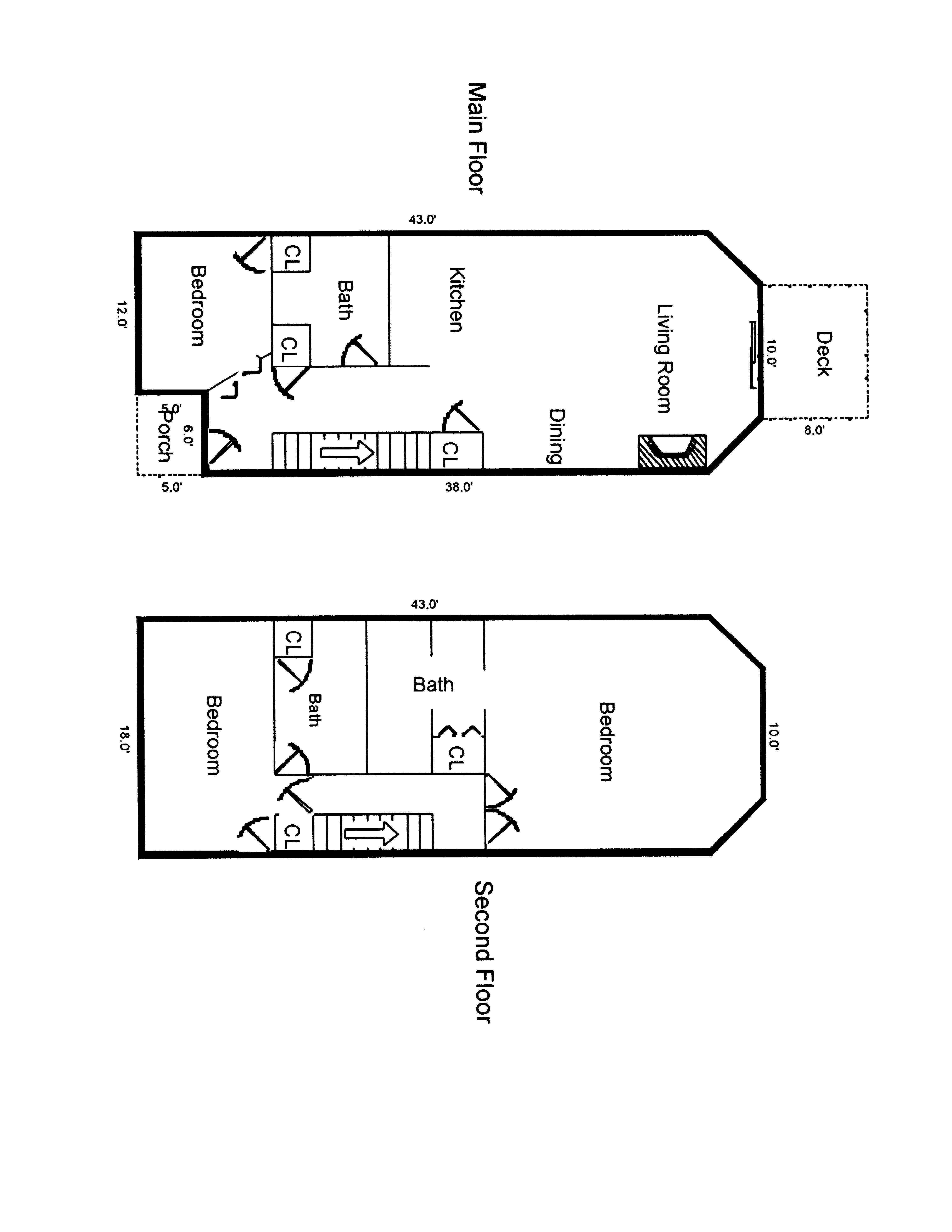
Click for "Typical" Middle Unit Floor Plan (Upper and Lower) 1630 sq ft.

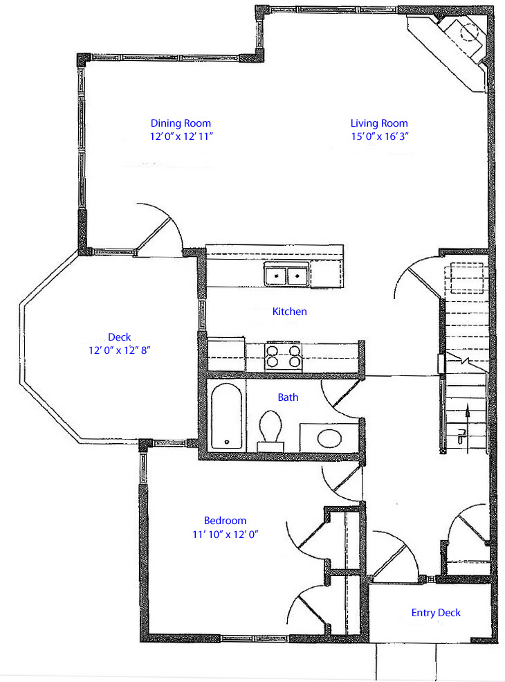
Click for "Typical" End Unit Floor Plan (Lower Level) 1895 sq ft (combined area).

Click for "Typical" End Unit Floor Plan (Upper Level) 1895 sq ft (combined area).

=================================================================

Windsong Location.

Scenes from Windsong.